Rathaus und Heimat­museum

Hofmeisterei in Hagnau
  • 1.BA 2009 I 2. BA 2011 I 3. BA 2017
  • BRI 17.025 m3
  • LPH 1 - 8

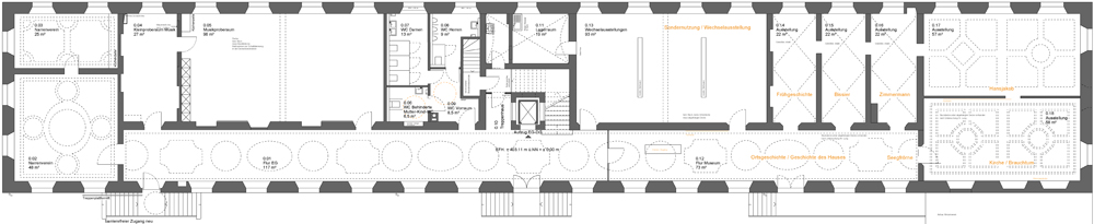
Die Hofmeisterei Hagnau ist ein ehemals zum Kloster Weingarten gehörendes Gebäude aus dem Jahre 1714, welches heute als Bürger- und Gästehaus dient.
Neben der Gemeindeverwaltung und dem „Hagnauer Museum“ nutzen und beleben die örtlichen Vereine das Gebäude.
Der formal ästhetische Anspruch an das denkmalgeschützte Gebäude erforderte einen sensiblen Umgang mit dem Baubestand. Sämtliche Räume waren zum Teil erheblich verbaut und nicht im ursprünglichen Zustand.

Bauherr
Gemeindeverwaltung Hagnau
Planung
Architekturbüro
Fritz Hack
Team
Dipl.Ing. (FH) Joachim Wuhrer
M.A.Dipl.Ing.(FH) Gabriele Kruck
Verwaltung Museum Konzerte

Auszeichnung Beispielhaftes Bauen 2012

Ziel der denkmalgerechten Sanierung war es, das Erdgeschoss in seiner ursprünglichen historischen Erscheinung wiederherzustellen. Die westliche Hälfte sollte als hochwertige Ausstellungsfläche für das Hagnauer Museum genutzt werden.
Der repräsentativ ausgestattete Große Saal im 1. Obergeschoss wurde sensibel restauriert und dient nun als vielseitiger Veranstaltungssaal.
Die Notwendigkeit einer barrierefreien Erschließung war eine äußerst dringliche Forderung, die mit dem Einbau eines Glasaufzugs in das historische Treppenauge gelöst wurde.
Ebenso wurden die WC-Bereiche neu organisiert und um ein Behinderten-WC ergänzt.