Hüni - Park

Neubau Bürogebäude
  • 2016
  • BRI 5.887 m3
  • LPH 1 - 5

Createc Gebäude

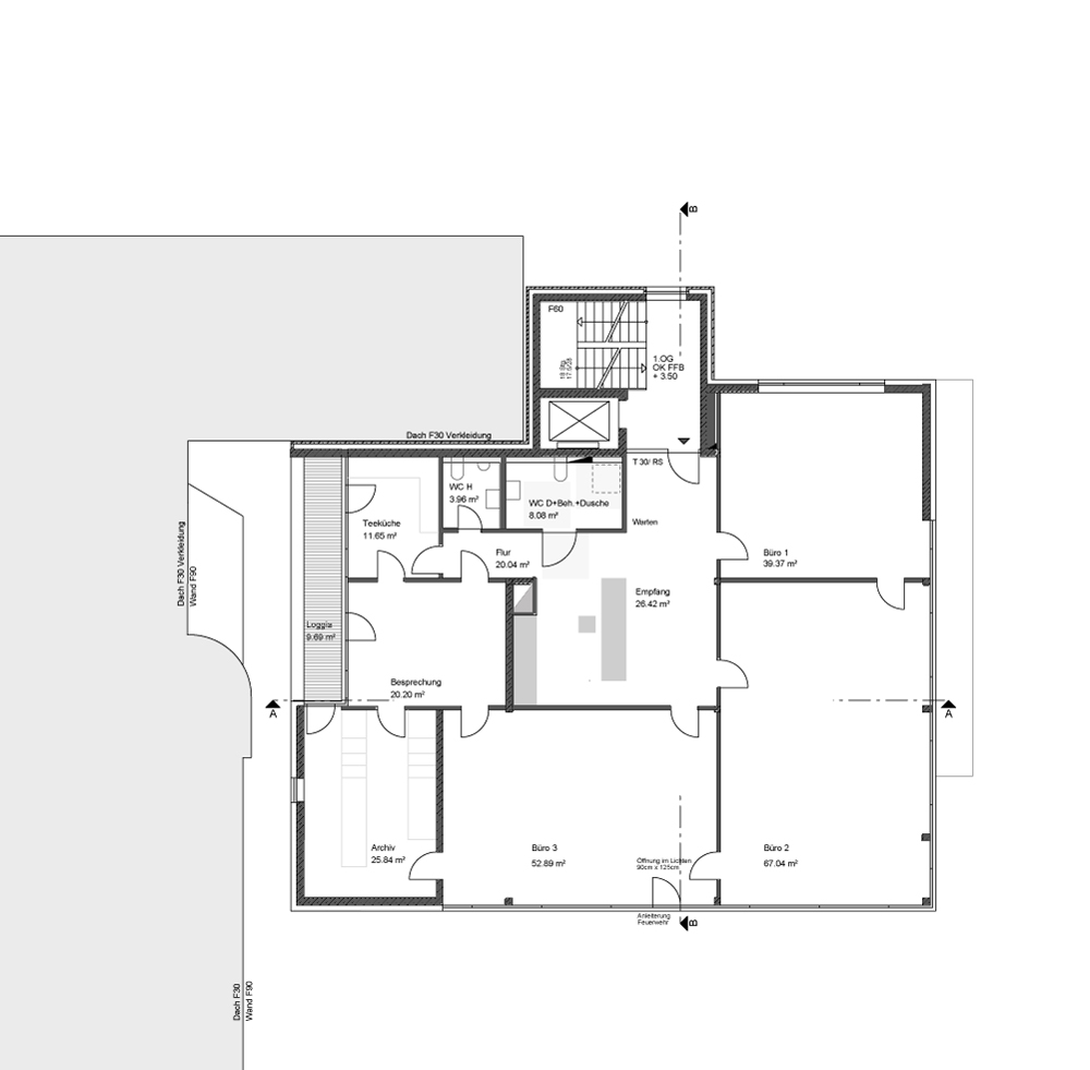
Für einen langjährigen Mieter von Büro- und Lagerflächen im Hüni-Areal wurde eine großzügig Flächenerweiterung notwendig und unumgänglich. Es war der Wunsch am Standort im „Hüni-Park“ bleiben zu können. Da der Immobilienbestand keine Alternativen bot, entschloss sich der Bauherr/Eigentümer zu einem Neubau. Ein alter Lagerschuppen bot nach Abbruch ein eingeschränktes Baufenster für das gewünschte Raumprogramm. Funktionale Anforderungen und Abläufe im Erdgeschoss mit Warenannahme und Warenausgabe und Lager sowie für zwei darüber liegende Bürogeschosse waren klare Vorgaben zur Nutzung und wurden im Entwurfsprozessen umgesetzt: transparente und flexible Büroräume, Empfangsbereich, Besprechungs- und Konferenzräume sowie Personal-, Rekreations- und dienende Räume. Die vertikale Erschließung, Treppe und Aufzug sollten die Anforderung der Flexibilität der vier anderen Geschosse für eine eigenständige Erschließung erfüllen. Der vorläufig geforderte Mieteranspruch wurde so für das erste und zweite Bürogeschoss erfüllt, sollte jedoch optional für einen möglichen Zuschlag erweiterbar sein – was auch im Laufe des Bauablaufes geschah. Großzügige, lichtdurchflutete Büroflächen mit großem Stützenraster sorgen für eine offene, flexible und transparente Bürolandschaft. Unterstützt durch ein Doppelbodensystem in dem die gesamte Elektro- und Dateninstallation intelligent organisiert ist. Über innovative Deckensegel für Heizung - Kühlung - integriertes Beleuchtungssystem und Raumakustik wird diese Forderung nachhaltig erfüllt. Durch eine konsequente Betonkonstruktion mit mineralischer Außendämmung, Isolierverglasung in Alu-Pfosten-Riegel Konstruktion und außenliegendem Sonnenschutzsystem wird eine hochwertige Gebäudehülle nach neuesten Anforderungen geschaffen. Die hohen Anforderungen an den Brandschutz wurden in Absprache mit der Feuerwehr individuell gelöst. Die Wärme- und Kälteerzeugung erfolgt durch zwei reversible Luft/Wasser-Wärmepumpen. Zur Abdeckung von Spitzenlasten und zur Verlängerung der Laufzeit bzw. Stillstandzeit steht ein Pufferspeicher zur Verfügung.

Bauherr
Hüni GmbH Co. KG
Planung
Architekturbüro Fritz Hack
Team
Dipl.Ing.(FH) C. Benz
BL: Redle Architekten
GU: Fa. Reisch GmbH +Co KG

2 Wohnungen mit Seesicht

Die Bauherrenanforderungen zur Wohnraumbeschaffung wurde mit zwei Wohnungen im Dachgeschoss - 4.OG - erfüllt. Eine 2-Zimmerwohnung Süd-Ost orientiert und eine 3,5 Zimmerwohnung Süd-West orientiert, jeweils mit vorgelagerten Terrassen über den Dächern der umgebenden Gewerbebauten und haben freie Sicht zum See. Abgeschlossen wird der Baukörper mit einem extensiv begrüntem Flachdach.