Clubhaus WYC

Neubau Clubhaus am Seemooser Horn
  • 2016
  • BRI 3.248 m3
  • LPH 1 - 8

Entwurf und Architektur
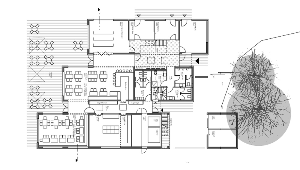
Der Entwurf zum Neubau WYC zitiert Tradition und Moderne, er fügt sich durch gegliederte Baukörper und der Wahl des Materials- Holz in die Landschaft am Bodensee in das Landschaftsschutzgebiet ein. Der ökologisch energieeffizient geplante Bau ersetzt an gleicher Stelle zwei geschichtsträchtige Holzbaracken (Dornier), dessen Ursprungskonzepte jedoch stark verändert wurden und ihre Identität verloren haben. Drei eineinhalbgeschossige Baukörper stehen parallel aber räumlich versetzt nebeneinander. Flachbauten verbinden die Gebäudeabschnitte. Proportionen, Dachform (steile Satteldächer) sowie Materialität lehnen sich an historischen Vorbildern an. Der optische Bezug zum See ist ein wichtiger Bestandteil des Entwurfskonzepts, der vorrangig nach Süden gerichtete Blick wird aufgewertet und durch eine Terrasse erweitert.

Bauherr
Württembergischer Yachtclub e.V. Friedrichshafen
Planung
Architekturbüro Fritz Hack
Team
Dipl.Ing.(FH) Joachim Wuhrer
Tragwerkspl.:Karbus IngenieursgesellschaftmbH
Bauphysik: ITA GMBH
HLS: IB Witschard
E: Werner Schwarz GmbH
see blick segeln

Materialität I Konstruktion und Energie I Haustechnik

Für einen naturnahen Sportverein in sensibler Landschaft, war es ein Wunsch und Verpflichtung ein Clubhaus mit hohem Anspruch an Umwelt und Ökologie zu stellen. Aus vorgegrauter Tanne sind die senkrechten Holzlatten, die zum einen für einen beständigen Farbton außen sorgen – und auch Regenwasser schnell ablaufen lassen. Die Innenverkleidung der Wände besteht wiederum aus Tanne. Die Fußböden in den Gast- und Clubräumen sind aus dunklem Eichenparkett, geräuchert und geölt. Nassräume wie Küche oder Sanitäranlagen sind mit Bodenfliesen ausgestattet, die übrigen Räume (Gänge, Büros, Archiv, Jugend) mit einem elastischen Belag aus gelbem oder grünem Naturkautschuk. Ebenfalls auf die Funktion ausgerichtet sind die Decken im Clubhaus. Die Gasträume sind mit vorgefertigten Deckenelementen ausgestattet, sie vereinen Tragwerk, Schallschutz und Raumakustik. Die Küche schließlich ist mit allem gastronomischem Gerät ausgestattet, das eine Bewirtung von 50 bis zu maximal 100 Gästen im Einzelfall zulässt.

Geheizt wird mit einer gasbetriebenen Absorptions-Wärmepumpe, die den Energiegehalt der Umgebungsluft ausnützt. Beheizt wird das komplette Gebäude mit Fußbodenheizung. Auf eine Klimatisierung des Clubhauses wurde bewusst verzichtet, da der Hauptbetrieb von März bis Oktober seinen saisonalen Nutzungsschwerpunkt hat. Entlüftet wird daher nur der Küchenbereich. „Wieso aufwendige Technik, wenn man auch einfach die Fenster aufmachen kann“. Auf Warmwasser in den Toilettenräumen wurde aus Kostengründen verzichtet. Eine Dusche für Notfälle steht in der Behinderten-Toilette zur Verfügung. Der gesamte Erdgeschossbereich ist barrierefrei.